Creating a Charging Station for the XRP
2024-08-16 | By Shruti Garg
License: See Original Project 3D Printer Microcontrollers Arduino Qwiic Raspberry Pi MCU
Planning Stage
Part 1: Planning a design for the docking station.
One of the parts of the wireless charging project is to create a charging station that can be assembled with the circuitry for the XRP to drive to and charge itself as needed. I looked at a few designs to gain inspiration and figure out the best design for the XRP. The main one used for inspiration was the robotic lawnmowers made by Husqvarna. Below is a picture of the docking station design that I used as inspiration.
I decided to incorporate a funnel-type design so the XRP robot could drive into the docking station as precisely as possible.
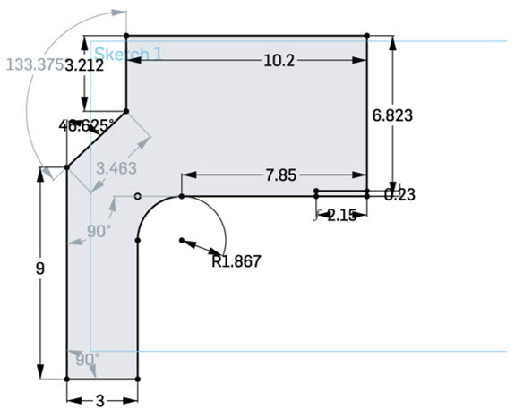
Part 2: Initial drawing of the design
I created rough sketches of the docking station before creating a CAD model. The initial sketch included a section for the wiring and circuitry parts to go in, and then the bottom part of the docking station would be where the wireless charger is connected so the robot can drive in and charge.
One issue I encountered while modeling this in CAD is that designing the charging station with too tight tolerances on both sides reduces the accuracy for the robot to drive in and charge; however, since the charging coils can’t be too misaligned, the position of the robot is critical for the charger to work. I decided to add angled extensions on each side and reduce the width of the charging station to match the exact width of the XRP, giving only .5 cm of extra space on each side.
The drawing of the CAD model looks like this:
The left side is drawn out, extruded, and mirrored to the right. The idea behind this design is that the arch of R 1.867 cm is the same corner dimension as the XRP. This way, the XRP will be perfectly aligned with the wireless charger, allowing little room for error. The width of 7.85 cm is almost half of the width of the XRP, so when the sketch is mirrored, the width will match the width of the XRP with a little under 1 cm of threshold.
Extruding the parts:
Part 1: Extruding the Sketch
Extruding the left side of the piece and then mirroring it to the right is the easiest way to create the piece. This will ensure that the charging station is perfectly symmetrical. With both sides extruded (in this case the height is 6 cm) the part looks like this:
In this isometric view, you can see that the part has a slot-type design in the middle by the opening. This is so the wireless coils on both the XRP and docking station can come together and charge the robot.
Part 2: Shell the piece:
The next step is to shell the piece so then there is a compartment for the wires to go into. In this model, the shell has a thickness of .25 cm. This is done by selecting the top face to be shelled and then choosing a thickness of your choice. The thickness won’t matter as long as it is thick enough to house all the wires.
The opening on the back middle of the part is made by creating a new sketch on the back face of the part and creating a rectangle. Once the rectangle is made, extrude the rectangle but select remove so then there is an opening in the back of the docking station for the wires to go through.
Part 3: Creating the drill holes.
Creating drill holes is the next important part of this model, as I would need a top piece to screw on once the wiring is completed. To create these holes, the easiest way is to create another drawing on the top face of the part.
Each corner has a square of dimensions 2.5 x 2.5 cm, which is extruded to the bottom of the part. Then there is a point created in the middle of each square which will be the drill hole. In this model, I chose to do holes with a diameter of .391 cm and a depth of .25 cm.
Creating the Top Part:
The top part is quite easy to create once you have the base of the docking station done. The goal of the top part is to make it a thin cover with the drill holes to screw together once all the circuitry is in the part. The easiest way to do this is to copy and paste sketch 1 from the first part and duplicate it. Then you need to create the holes by mimicking the dimensions from the previous part.
Once the part is replicated, the sketch is extruded to a depth of .2 cm. The depth can be thinner or thicker depending on your preferences. The holes must be in the same position as the holes in the base of the docking station to ensure that both pieces can be screwed together.
Creating the extension parts:
The next design modification involves creating angled extensions to precisely align the XRP with the wireless charger side. This is done by creating a simple triangle design that can be glued together with the main docking station.
I 3D printed 2 of these to add to the docking station.
3D Prints
Here is a look at the parts after they are 3D printed:
Some things to note:
Through this design, there were some complications while designing the sketch. One thing that I realized is that when my sketch wasn’t defined, each side wouldn’t be symmetrical, and it took a lot of trial and error for the docking station to come out correctly. Another issue was figuring out the angles of the docking station, which was found to be flexible as long as the XRP fits in the docking station. Also make sure to fill the compartment with something heavy, such as rocks, so the charging station doesn’t slide around when the XRP is docking. One last note is that the front center of the docking station needed an opening slot on top for the wires for the coil to go through so I cut one using a hobby knife, although this can also just be done in CAD and saves you time to not have to cut it out later. With some of these little notes, you can create your own docking station or customize this one to your liking!
CAD prints for the receivers
Initial Planning Stage
Since there are batteries involved when creating the wireless charger, we needed something that would hold the batteries on the XRP Robot. We decided to create receivers that would hold the battery in place.
The initial sketch is designed to place the batteries inside the case. The middle piece is for the coils to sit on in the XRP.
Once the piece is all printed, you can attach it to the XRP just like this:

